Urban
Ваш пентхаус на природі. Два поверхи, тераси та панорамний вид.
Будинок Urban — сучасний каркасний будинок для міського стилю життя
Проєкт Urban — це сучасний каркасний будинок, створений для людей, які цінують мінімалістичну архітектуру, функціональність простору та комфорт щоденного життя. Архітектура будинку поєднує прості геометричні форми, великі площини скління та сучасні фасадні рішення, що формують стильний та лаконічний вигляд.
Будинок гармонійно виглядає як у сучасній міській забудові, так і в котеджних містечках або на заміських ділянках. Проєкт розроблений таким чином, щоб забезпечити максимум комфорту при оптимальній площі та раціональному використанні простору.
Архітектура та дизайн
Архітектура будинку Urban базується на сучасних принципах мінімалізму. Чіткі лінії, стримана геометрія та великі панорамні вікна формують стильний та сучасний образ будинку.
Велика площа скління дозволяє наповнити внутрішній простір природним світлом та візуально розширює інтер’єр. Завдяки цьому будинок виглядає легким, відкритим і сучасним. Фасади можуть бути виконані з різних матеріалів — дерев’яних панелей, фіброцементу або сучасних композитних матеріалів, що дозволяє адаптувати зовнішній вигляд під архітектуру ділянки.
Раціональне планування простору
Планування будинку продумане таким чином, щоб забезпечити комфортне проживання для сім’ї. Центральною частиною є простора кухня-вітальня, яка об’єднує зону приготування їжі, обідню частину та зону відпочинку.
Таке рішення створює відкритий житловий простір, де зручно проводити час із родиною або приймати гостей. Спальні та приватні приміщення відокремлені від загальної зони, що забезпечує тишу та комфорт для мешканців.
У проєкті також передбачені технічні приміщення, санвузли та зручні місця для зберігання, що робить будинок практичним для щоденного використання.
Технологія будівництва TRIDENT
Будинок Urban реалізується за технологією TRIDENT Modular Housing, що поєднує сучасне дерев’яно-каркасне будівництво з фабричним виробництвом елементів будинку.
Основні конструктивні елементи виготовляються на виробництві з точним контролем якості. Після цього будинок швидко монтується на ділянці. Такий підхід дозволяє скоротити строки будівництва та забезпечити стабільну якість конструкцій.
Технологія передбачає високий рівень енергоефективності, сучасні інженерні рішення та довговічність конструкцій.
Енергоефективність та комфорт
Каркасна конструкція будинку забезпечує високі показники теплоізоляції. Стіни та перекриття формуються з багатошарових енергоефективних матеріалів, що допомагає зменшити витрати на опалення та підтримувати комфортний мікроклімат у будинку.
Поєднання теплоізоляції, сучасних віконних систем та продуманих інженерних рішень робить будинок Urban комфортним для проживання у будь-яку пору року.
Гнучкість проєкту
Як і інші будинки каталогу Trident, проєкт Urban може бути адаптований під індивідуальні потреби власника. Можливе коригування площі, зміна планування, додавання терас, навісів або додаткових приміщень.
Завдяки гнучкості технології будинок можна оптимізувати під конкретну ділянку, бюджет або формат використання.
Для кого підходить будинок Urban
Проєкт Urban стане оптимальним рішенням для:
-
постійного проживання сім’ї;
-
сучасного заміського будинку;
-
компактного будинку для котеджного містечка;
-
інвестиційного або орендного житла.
Це універсальний сучасний будинок, який поєднує архітектурну естетику, функціональність і технологічність будівництва.
-
Габарити будинку (м)
7,9×12,8
-
Площа забудови (м²)
101,1
-
Корисна площа (м²)
127,6
-
Висота приміщень (м)
2,4
-
Вага будинку (т)
32
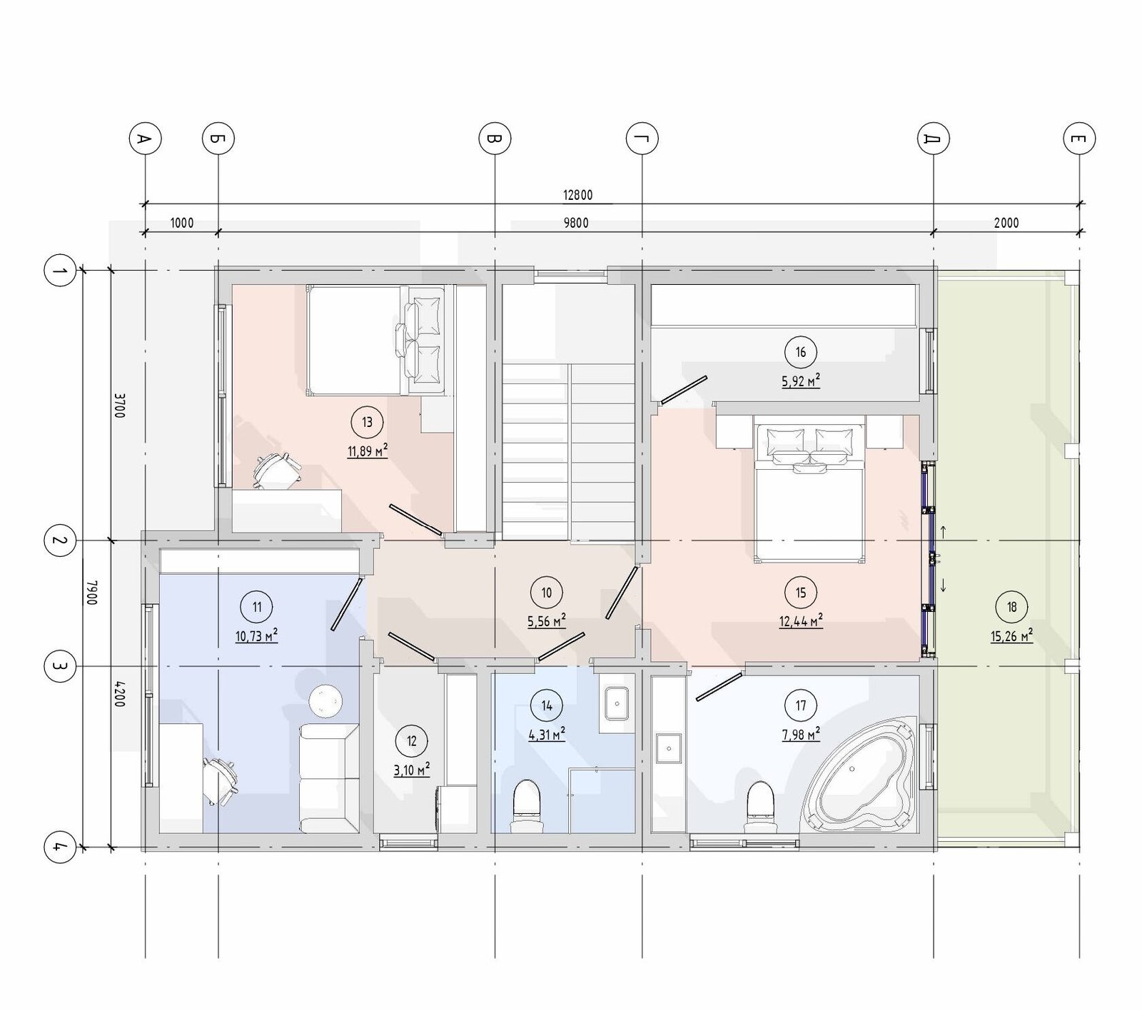
Експлікація приміщень
-
1
Терасса
3,89
-
2
Тамбур
6,87
-
3
Тех. приміщення
3,11
-
4
Коридор
5,67
-
5
Санвузол
4,32
-
6
Кухня-вітальня
27,89
-
7
Спальня
11,94
-
8
Кладова
5,89
-
9
Тераса
15,34
-
10
Коридор
5,56
-
11
Кабінет
10,73
-
12
Пральня
3,10
-
13
Спальня
11,89
-
14
Санвузол
4,31
-
15
Майстер спальня
12,44
-
16
Майстер гардеробна
5,92
-
17
Майстер санвузол
7,98
-
18
Тераса
15,26
-
Габарити будинку (м)
7,9×12,8
-
Площа забудови (м²)
101,1
-
Корисна площа (м²)
127,6
-
Висота приміщень (м)
2,4
-
Вага будинку (т)
32
Комплектація будинку

Вартість від:
79622
$
ІНШІ РІШЕННЯ
Схожі проєкти будинків
Інженерна система, підтверджена сертифікацією
Кожен будинок Trident створюється на базі стандартизованої інженерної системи з контролем якості.
Конструкції проходять внутрішню перевірку відповідності, теплотехнічні розрахунки та контроль вузлів згідно з регламентами виробництва.
Ми не просто будуємо — ми працюємо за структурованою технологією, що забезпечує прогнозований результат, довговічність і енергоефективність.
Переглянути технологію та виробництва
Офлайн-перегляд
Шоурум модульних будинків
Запишіться на перегляд шоуруму
Подивіться модульний будинок наживо: планування, матеріали, комплектацію та якість виконання. Наші фахівці дадуть відповіді на всі запитання.













