Urban Loft Cube
The Urban Loft Cube — це двоповерховий будинок, що поєднує естетику міського лофту та функціональність сучасного житла. Його архітектура базується на чітких лініях, великому склінні й контрасті матеріалів, що створює динамічний образ сучасного дому.
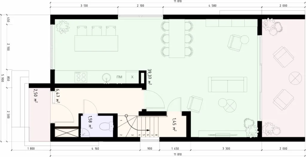
На першому поверсі розташовані простора вітальня з кухнею-студією, ванна кімната та терасою.
Другий поверх містить три спальні, ванна кімната та терасса.
Будинок виконаний у домокомплекті, виготовлений на виробництві Trident Modular Housing.Конструкція з дерев’яного каркасу камерної сушки, базальтове утеплення та високий рівень заводського контролю забезпечують енергоефективність, стабільний мікроклімат і довговічність.
The Urban Loft Cube — це вибір тих, хто цінує простір, дизайн і свободу.
Міський характер, технологічна сутність і комфорт життя — у кожноій деталі.
У вартість входить:
-
виготовлення домокомплекту будинку за дерев’яно-каркасною технологією;
-
зовнішній закритий контур із внутрішніми перегородками (згідно з плануванням);
-
каркас із сосни 45×195 мм — стругана дошка камерної сушки, оброблена вогнебіозахистом;
-
панелі швидкого монтажу з утепленням базальтовою ватою (підлога / стіни / дах / внутрішні перегородки — 200 / 200 / 250 / 100–150 мм);
-
фасад і дах — комбіноване оздоблення: дерево (смерека планкен у кольорі на вибір замовника) + метал (профнастил або клік-фальц);
-
вхідна група дверей та енергозберігаючі вікна WDS — двокамерні, ламіновані, металопластикові (Argon / Solar / UF).
Це сучасна будинок який відображає продумане планування в просторовому дизайні для життя великої сім’ї.
Загалом, цей будинок представляє собою вдале поєднання сучасного дизайну, природних матеріалів та функціональності, створюючи приємний та комфортний простір для життя.











