Silva House
Silva House — це дім, у якому простота форми перетворюється на витончену естетику.
Лаконічний силует, натуральні матеріали та продумана конструкція створюють відчуття простору, тепла й спокою.
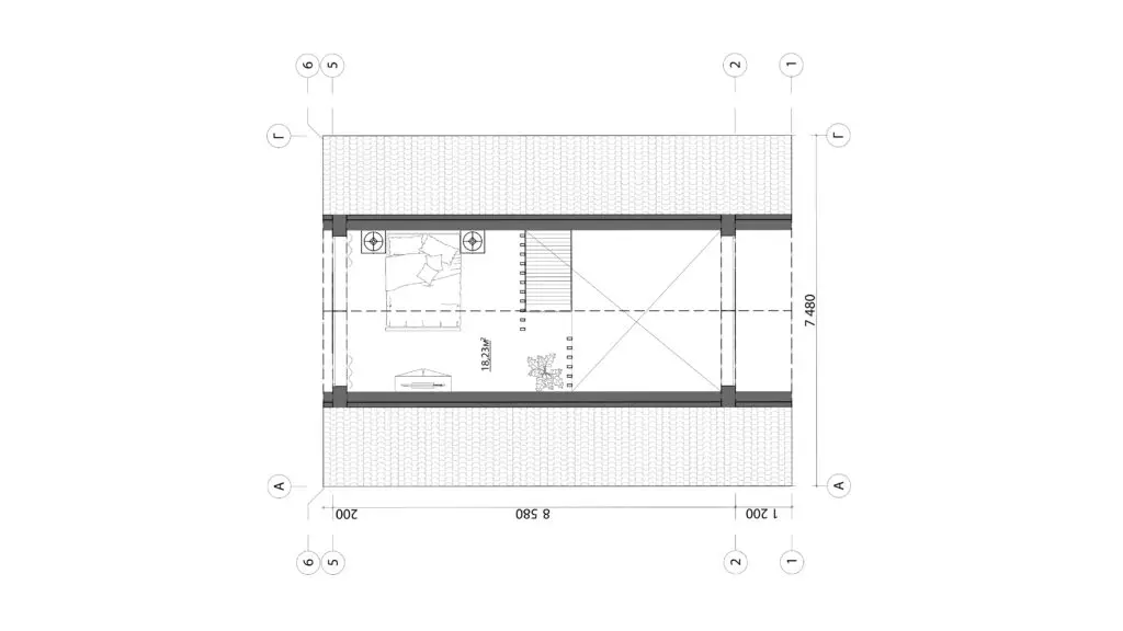
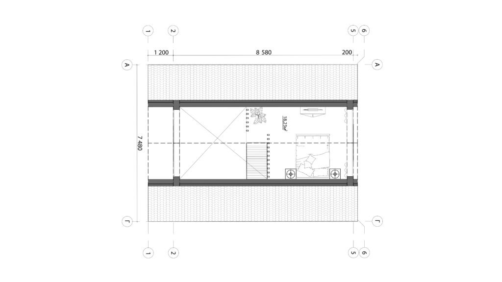
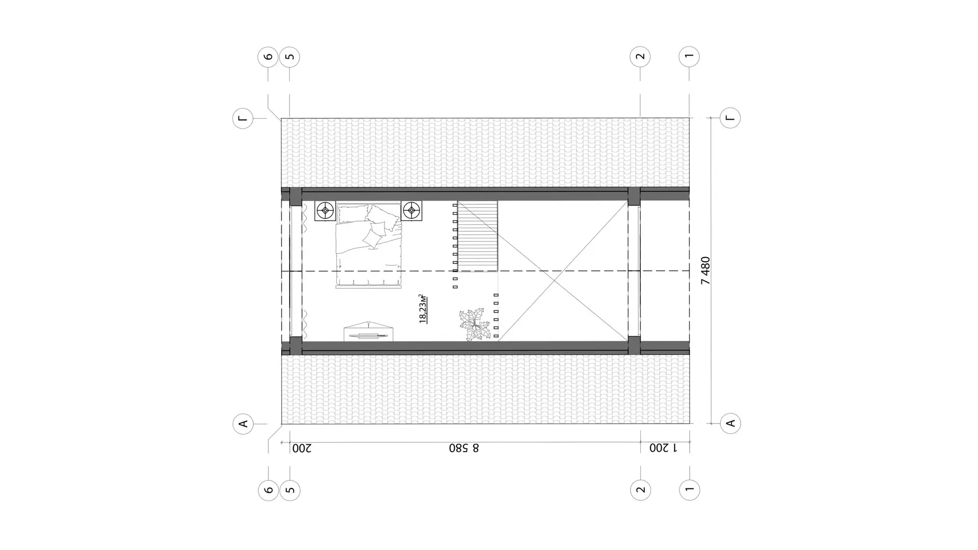
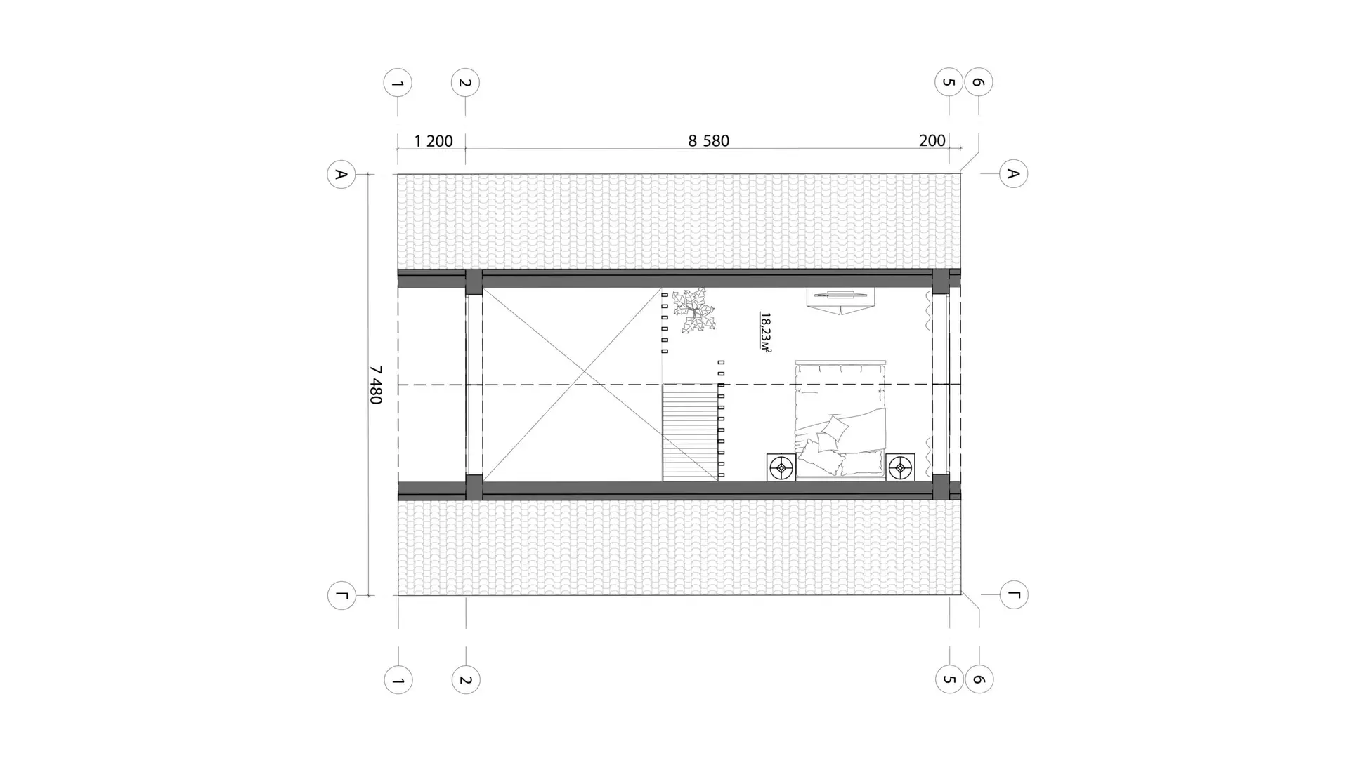
Будинок площею 70,6 м² виготовляється та збирається за панельно-каркасною технологією Trident Modular Housing, що гарантує точність геометрії, енергоефективність і довговічність.
Виробництво та збірка займають лише близько 3 тижнів, а встановити будинок можна в будь-якому місці — біля озера, у горах чи на власній ділянці.
Silva House постачається без внутрішнього ремонту, залишаючи простір для вашого індивідуального стилю та дизайнерських рішень.
У вартість входить:
-
виготовлення домокомплекту будинку зазначеної моделі за дерев’яно-каркасною технологією;
-
зовнішній закритий контур із внутрішніми перегородками (згідно з плануванням);
-
каркас із сосни 45×195 мм — стругана дошка камерної сушки, оброблена вогнебіозахистом;
-
панелі швидкого монтажу з утепленням базальтовою ватою (підлога / стіни / дах / внутрішні перегородки — 200/200/250/100–150 мм);
-
фасад і дах — комбіноване оздоблення: дерево (смерека планкен у кольорі на вибір замовника) + метал (профнастил або клік-фальц);
-
вхідна група дверей та енергозберігаючі вікна WDS — двокамерні, ламіновані, металопластикові (Argon / Solar / UF).
Сучасний Silva House будинок від Trident — це енергоефективна модульна конструкція з характерним “А”-силуетом, виготовлена за каркасною технологією на нашому виробництві. Швидке зведення, надійні матеріали, утеплення для цілорічного проживання та стильний дизайн роблять Silva House ідеальним рішенням для дачі, відпочинку, оренди або компактного житла.











