Forest House
Forest House — це одноповерховий будинок, створений для життя серед природи або заміського відпочинку. Лаконічна архітектура, великі вікна та природні матеріали формують атмосферу спокою й затишку.
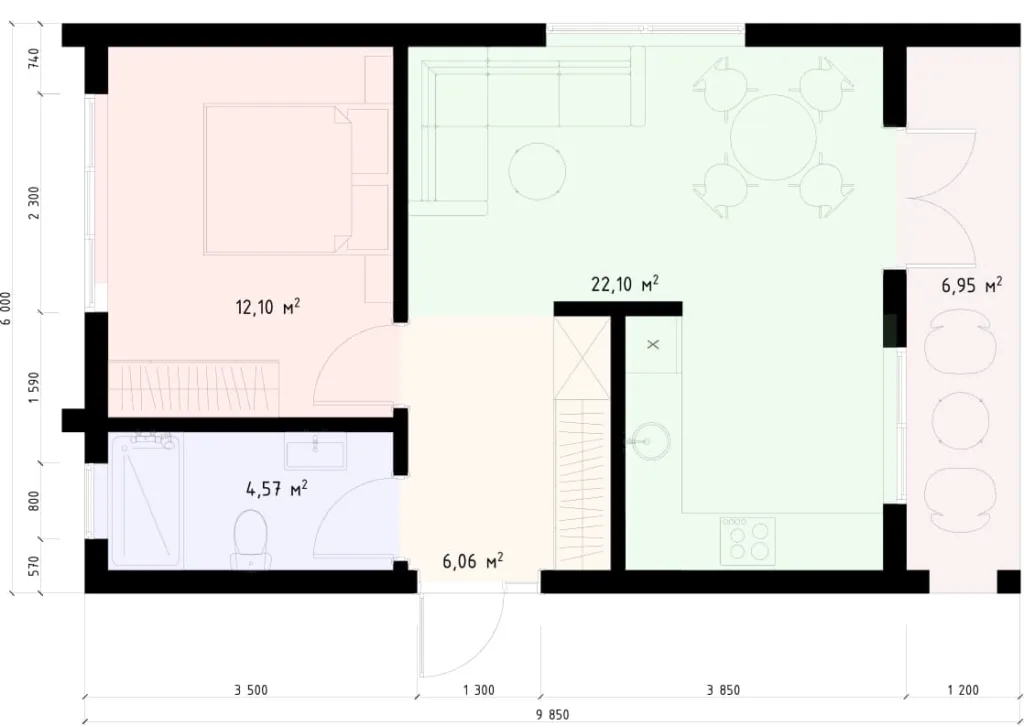
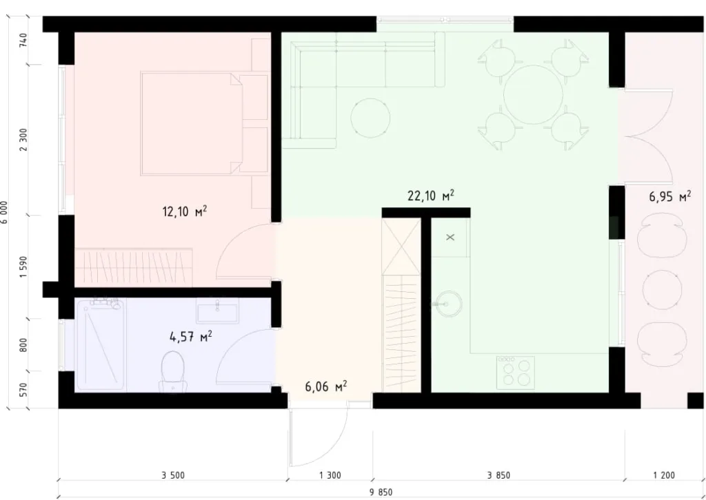
Продумане планування включає вітальню з кухнею-студією, спальню, ванну кімнату та терссу.
Будинок може бути виконаний у модульному форматі або як домокомплект, виготовлений на виробництві Trident Modular Housing.
Енергоефективна каркасна конструкція з базальтовим утепленням, якісна збірка й заводський контроль гарантують тепло, надійність і довговічність.
Forest House — це природна простота, втілена у технологічному виконанні.
У вартість входить:
-
виготовлення домокомплекту будинку за дерев’яно-каркасною технологією;
-
зовнішній закритий контур із внутрішніми перегородками (згідно з плануванням);
-
каркас із сосни 45×195 мм — стругана дошка камерної сушки, оброблена вогнебіозахистом;
-
панелі швидкого монтажу з утепленням базальтовою ватою (підлога / стіни / дах / внутрішні перегородки — 200 / 200 / 250 / 100–150 мм);
-
фасад і дах — комбіноване оздоблення: дерево (смерека планкен у кольорі на вибір замовника) + метал (профнастил або клік-фальц);
-
вхідна група дверей та енергозберігаючі вікна WDS — двокамерні, ламіновані, металопластикові (Argon / Solar / UF).
Forest House — це не просто дім. Це місце, де архітектура стає частиною природи, а природа — частиною вашого життя.
Бунгало – улюблений архітектурний проект, що втілює простоту та функціональність. Як одноповерхові будинки, вони забезпечують легкий доступ, ідеально підходять для людей похилого віку, сімей з маленькими дітьми або тих, хто має проблеми з пересуванням.
Пологий, двосхилий або шатровий дах створює відчуття відкритого простору та гармонійно поєднується з навколишнім ландшафтом.









