Nest
Компактний та затишний модульний будинок з продуманим зонуванням та панорамними вікнами, створений для комфортного життя в гармонії з природою.
Nest
Nest — компактний модульний будинок для комфортного життя
Проєкт Nest — це сучасний модульний будинок, створений для комфортного життя, відпочинку або інвестицій. Він поєднує компактність, функціональність та сучасний дизайн, забезпечуючи оптимальне використання простору та швидку реалізацію проєкту.
Будинок ідеально підходить для заміських ділянок, рекреаційних зон або орендних проєктів, де важливі швидкість встановлення та ефективність.
Сучасна архітектура та компактність
Будинок Nest виконаний у сучасному мінімалістичному стилі. Лаконічні форми, продумане скління та компактні розміри дозволяють гармонійно інтегрувати його у будь-яке середовище.
Панорамні вікна забезпечують природне освітлення та візуально розширюють простір, створюючи комфортний і світлий інтер’єр.
Функціональне планування
Планування будинку Nest максимально ефективне. Центральною частиною є кухня-вітальня, яка поєднує всі основні функції житлового простору.
Спальні та приватні зони організовані таким чином, щоб забезпечити комфорт навіть у компактному форматі. Передбачені санвузол та місця для зберігання.
Модульна технологія будівництва
Будинок Nest реалізується за модульною технологією TRIDENT Modular Housing, що передбачає виготовлення основних конструктивних елементів на виробництві.
Готові модулі доставляються на ділянку та монтуються у короткі строки. Такий підхід забезпечує високу точність, контроль якості та мінімальну залежність від погодних умов.
Швидкість будівництва та ефективність
Модульний формат дозволяє значно скоротити строки реалізації проєкту та швидко ввести будинок в експлуатацію.
Це особливо важливо для інвестиційних проєктів, орендного бізнесу або швидкого заселення.
Енергоефективність та комфорт
Будинок має високі теплоізоляційні властивості завдяки сучасним матеріалам і багатошаровим конструкціям.
Це забезпечує комфортний мікроклімат у будь-яку пору року та дозволяє зменшити витрати на опалення та кондиціювання.
Гнучкість та адаптація
Проєкт Nest легко адаптується під різні задачі:
- зміна площі
- додавання тераси
- масштабування модулів
- адаптація під ділянку
Кому підійде будинок Nest
Будинок Nest стане чудовим рішенням для:
- компактного заміського житла
- будинку для відпочинку
- глемпінгів і орендного бізнесу
- гостьового будинку
- першого власного житла
Nest — це сучасний модульний будинок, який поєднує швидкість реалізації, функціональність та комфорт, створюючи ефективне рішення для життя або інвестицій.
-
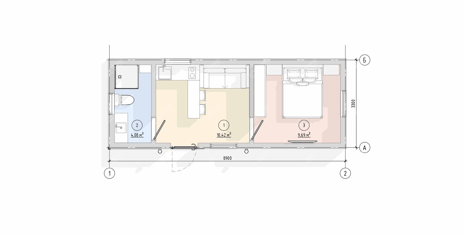
Габарити будинку (м)
3,3×8,9
-
Площа забудови (м²)
29,37
-
Корисна площа (м²)
24,19
-
Висота приміщень (м)
2,4
-
Вага будинку (т)
7
Експлікація приміщень
-
1
Кухня-вітальня
10,42
-
2
Санвузол
4,08
-
3
Спальня
9,69
-
Габарити будинку (м)
3,3×8,9
-
Площа забудови (м²)
29,37
-
Корисна площа (м²)
24,19
-
Висота приміщень (м)
2,4
-
Вага будинку (т)
7
Комплектація будинку

Вартість від:
14688
$
ІНШІ РІШЕННЯ
Схожі проєкти будинків
Інженерна система, підтверджена сертифікацією
Кожен будинок Trident створюється на базі стандартизованої інженерної системи з контролем якості.
Конструкції проходять внутрішню перевірку відповідності, теплотехнічні розрахунки та контроль вузлів згідно з регламентами виробництва.
Ми не просто будуємо — ми працюємо за структурованою технологією, що забезпечує прогнозований результат, довговічність і енергоефективність.
Переглянути технологію та виробництва
Офлайн-перегляд
Шоурум модульних будинків
Запишіться на перегляд шоуруму
Подивіться модульний будинок наживо: планування, матеріали, комплектацію та якість виконання. Наші фахівці дадуть відповіді на всі запитання.











